3720 Bailey AvenueCleveland, OH 44113




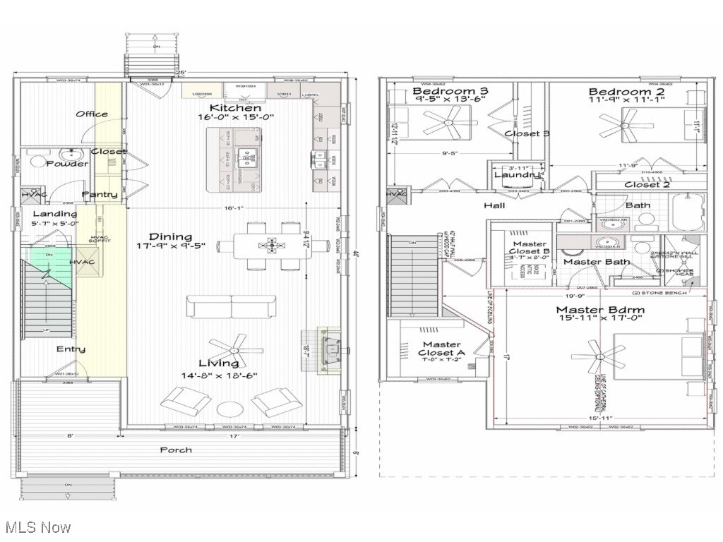
TO BE BUILT | 15-YEAR TAX ABATEMENT | PERSONALIZE INTERIOR FINISHES! The opportunity to build your dream home in Ohio City is now here! Knez Homes presents this classic colonial to-be-built residence waiting for a buyer to make it theirs! This home is awaiting permits and will not be started on spec. The option to personalize your interior selections at our Knez Design Center is offered, granting buyers the ability to design this home to their standards. Enjoy 3 bedrooms, 2.5 bathrooms, first-floor office space, full basement, and an open-concept design in one of Cleveland's most desirable neighborhoods. Enjoy Cleveland's eligible 15-year tax abatement in one of Cleveland's most desirable neighborhoods. Local amenities offer you some of Cleveland's best. Experience an amazing selections of dining, shopping, activities, and more within a stone's throw of your front door. Quick highway access and proximity to downtown make going around the city effortlessly.
| 3 months ago | Price changed to $534,000 | |
| 3 months ago | Listing updated with changes from the MLS® | |
| 5 months ago | Listing first seen on site |
The data relating to real estate for sale on this website comes in part from the Internet Data Exchange program of MLS NOW. Real estate listings held by brokerage firms other than are marked with the Internet Data Exchange logo and detailed information about them includes the name of the listing broker(s). The photos may be altered, edited, enhanced or virtually staged. Information Deemed Reliable But Not Guaranteed. Copyright 2026 - Multiple Listing Service, Inc. – All Rights Reserved.


Did you know? You can invite friends and family to your search. They can join your search, rate and discuss listings with you.