1917 Cypress AvenueCleveland, OH 44109




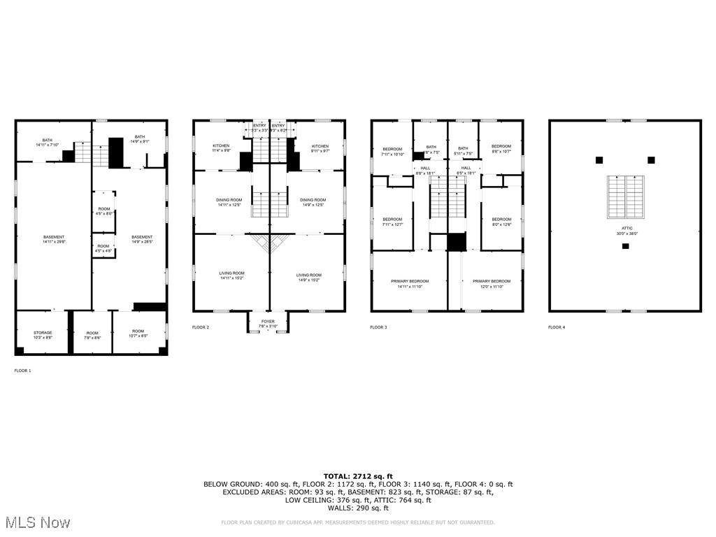
Beautifully cared for and rich with character, this South Hills duplex is a rare find. Set on a picturesque street, a deep-set front porch welcomes you to 1917 Cypress—lovingly maintained by the same family for decades and never used as a rental. Pride of ownership radiates from every corner. Recent updates ensure peace of mind, including a brand-new roof (2022/2023), newer HVAC systems (approximately 7 years old), upgraded electrical panels (2020), and a 2019 driveway with rear drain and waterproofing. Nearly all windows have been replaced with energy-efficient double panes, blending classic charm with modern comfort. Each unit features three spacious bedrooms and a full bath on the second floor, with additional bathrooms in the lower levels. Throughout, you’ll find timeless crown molding, beautiful hardwood floors, and abundant storage. Located in the trending South Hills neighborhood of Old Brooklyn, this property offers quick access to shopping, parks, dining, and major highways—an ideal combination of convenience and community. Whether you’re seeking a multi-generational home or an impeccable investment, this is one you won’t want to miss.
| 2 weeks ago | Status changed to Pending | |
| 2 weeks ago | Listing updated with changes from the MLS® | |
| 2 weeks ago | Listing first seen on site |
The data relating to real estate for sale on this website comes in part from the Internet Data Exchange program of MLS NOW. Real estate listings held by brokerage firms other than are marked with the Internet Data Exchange logo and detailed information about them includes the name of the listing broker(s). The photos may be altered, edited, enhanced or virtually staged. Information Deemed Reliable But Not Guaranteed. Copyright 2025 - Multiple Listing Service, Inc. – All Rights Reserved.


Did you know? You can invite friends and family to your search. They can join your search, rate and discuss listings with you.